Page suivante
Page précédente
Paris (75009)

Appartement 4 pièce(s) 2 chambre(s) 70.01 m²

Réf 9L23

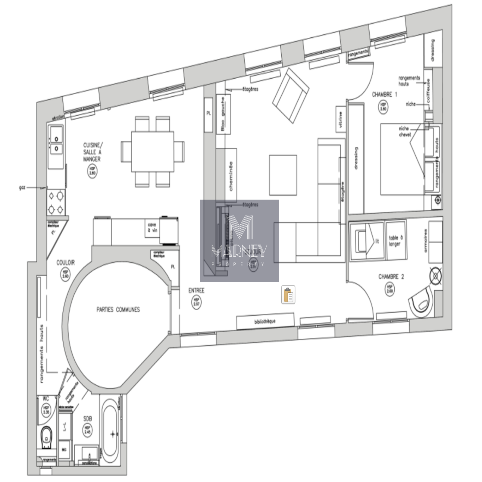
Une Nouvelle EXCLUSIVITE de L'agence MARNEY PROPERTY, spécialiste de Paris 9ème. Nous vous proposons à 50m de l'agence dans le secteur recherché Folies Bergère / Cité Trévise, au 1er étage sans ascenseur, ce très beau 3/4 pièces avec parquet-moulures-cheminée de 70.01m2 loi carrez. Cet appartement à vendre a entièrement été refait à neuf par une architecte d'intérieur avec de beaux matériaux, AUCUN Travaux à prévoir. Il se compose d'une entrée, un Séjour TRAVERSANT avec Cheminée fonctionnelle, une chambre principale, une 2ème chambre enfant (7.05m2), une salle à manger avec cuisine intégrée entièrement aménagée, une salle de bain, 1 WC séparé et de nombreux rangements intégrés. Une grande cave de 7m2 saine vient compléter ce joli bien.

CONTACT DIRECT ET VISITES AVEC BORIS GARNODIER au 06 24 40 65 19

BON A SAVOIR : Pour vos biens à la vente, notre agence se rend disponible sous 24H pour une Estimation personnalisée offerte, y compris le week end.

Bilan énergétique

Diagnostics énergetiques
A propos de ce bien Caractéristiques de ce bien
  • Surface 70,01 m²
  • carrez 70,01 m²
  • 2 chambre(s)
  • 1 salle(s) de bain
  • construit en 1900
  • cuisine séparée (équipée)
  • Chauffage individuel : chaudière (gaz)
  • 1 niveau(x)
  • 1er étage
  • 5 étage(s)
  • cave
  • interphone

Info copro

Copropriété
  • Copropriété Oui
  • Nombre de lots 131
  • Quote part annuelle des charges 1 952 €
  • Plan de sauvegarde Non
  • Statut du syndic Soumis à une procédure d'alerte

Financier

Informations financières
Les honoraires d'agence seront intégralement à la charge du vendeur  
Charges 162 €

Simulation

Calcul des mensualités
* Champs obligatoires
Marney Property Agence